野洲市小篠原 店舗兼住宅
■JR野洲駅徒歩14分 ■店舗付き5LDK住宅 ■店舗部分葯13坪 ■国道8号線沿い ■角地 ■土地面積80.12坪 ■来客用駐車場7台分 ■前面道路6m以上
ローンシミュレーションこの物件を購入した場合の、月々の支払い価格の一例です。借り入れを保証するものではございません。
- 返済期間
-
- 金利
-
- ボーナス時の増額(1回分)
-
- 借入金額:
-
- 頭金:
-

- 毎月の返済額:
(※元利均等方式 金利5.00%まで ※返済年数5~50年まで入力できます)
(※ボーナスは年2回で計算しています。1000万円まで入力できます)
(※物件購入時、その他諸費用が発生する場合がございます)
物件概要
【中古一戸建】 物件番号:80239034 情報更新日:2026年03月08日 次回更新予定日:2026年03月19日| 所在地 | 滋賀県野洲市小篠原 | ||
|---|---|---|---|
| 交通 | |||
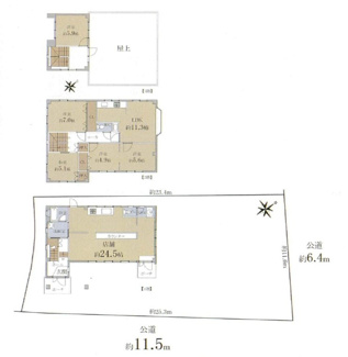
| 間取り/詳細 |
5LDK/ LDK 10.0帖/洋室 6.0帖/洋室 5.0帖/洋室 4.5帖/和室 4.5帖/洋室 5.0帖/その他 26.0帖 |
建物面積(坪数) | 150.77㎡(45.6坪) |
| 価格 | 3,490万円 | ||
| 駐車場/月額料金 | -/- | ||
| 土地の敷金/保証金 | -/- | 借地料/借地期間 | -/- |
| 土地権利 | 所有権 | 土地面積(坪数) | 264.89㎡(80.12坪) |
| 傾斜地部分面積 | - | 路地状敷地 | - |
| 私道負担面積/セットバック | -/無 | 高圧線下面積 | - |
| 地目/地勢 | 宅地/平坦 | 接道状況 | 角地(北東 公道 6.4m 間口 11.6m)(南東 公道 11.0m 間口 25.0m) |
| 建ぺい率/容積率 | 60%/200% | 用途地域 | 準住居 |
| 都市計画 | 市街化区域 | 種別/構造 | 中古一戸建/鉄骨造 |
| 階建 | 3階建 | 築年月(築年数) | 1994年 8月 (築31年) |
| 総区画数/販売区画数 | -/- | 向き | - |
| 現況 | 居住中 | その他の法令上の制限 | - |
| 取引態様/引渡時期 | 仲介/相談 | 建築確認番号 | - |
| 物件番号 | 80239034 | 取引条件の有効期限 | 2026年03月19日 |
| 設備条件 |
|
||
| 備考 |
■電気、公営水道、公共下水、プロパンガス ■接道:①北東側6.4m公道 ②南東側11m公道(国道8号) ■公簿取引・現状有姿渡し |
||
| 取扱会社 |
|
||
※地図上に表示される物件の位置は付近住所に所在することを表すものであり、実際の物件所在地とは異なる場合がございます。













