近江八幡市牧町 中古戸建
■JR近江八幡駅バス23分 ■9DK+店舗付き ■敷地広々256.22坪 ■駐車7台可能 ■広大な敷地と大きなお家でゆったりと暮らせます♪
ローンシミュレーションこの物件を購入した場合の、月々の支払い価格の一例です。借り入れを保証するものではございません。
- 返済期間
-
- 金利
-
- ボーナス時の増額(1回分)
-
- 借入金額:
-
- 頭金:
-

- 毎月の返済額:
(※元利均等方式 金利5.00%まで ※返済年数5~50年まで入力できます)
(※ボーナスは年2回で計算しています。1000万円まで入力できます)
(※物件購入時、その他諸費用が発生する場合がございます)
物件概要
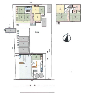
【中古一戸建】 物件番号:91402171 情報更新日:2026年02月12日 次回更新予定日:2026年02月26日| 所在地 | 滋賀県近江八幡市牧町 | ||
|---|---|---|---|
| 交通 | |||
| 間取り/詳細 | 9DK/ | 建物面積(坪数) | 191.94㎡(58.06坪) |
| 価格 | 1,300万円 | ||
| 駐車場/月額料金 | -/- | ||
| 土地の敷金/保証金 | -/- | 借地料/借地期間 | -/- |
| 土地権利 | 所有権 | 土地面積(坪数) | 847.02㎡(256.22坪) |
| 傾斜地部分面積 | - | 路地状敷地 | - |
| 私道負担面積/セットバック | -/- | 高圧線下面積 | - |
| 地目/地勢 | 宅地/平坦 | 接道状況 | 一方(南 公道 6.0m 間口 3.0m) |
| 建ぺい率/容積率 | 60%/200% | 用途地域 | 無指定 |
| 都市計画 | 市街化調整区域 | 種別/構造 | 中古一戸建/木造 |
| 階建 | 2階建 | 築年月(築年数) | 1980年 12月 (築45年) |
| 総区画数/販売区画数 | -/- | 向き | - |
| 現況 | 居住中 | その他の法令上の制限 | - |
| 取引態様/引渡時期 | 仲介/相談 | 建築確認番号 | - |
| 物件番号 | 91402171 | 取引条件の有効期限 | 2026年02月26日 |
| 設備条件 |
|
||
| 備考 |
■既設倉庫解体渡し ■平屋木造店舗148㎡ 築60年付き ■内部残置物撤去、分筆後現状渡し ■仮実測の為、測量後に土地面積及び金額変更あり ■リフォーム工事指定業者あり |
||
| 取扱会社 |
|
||
※地図上に表示される物件の位置は付近住所に所在することを表すものであり、実際の物件所在地とは異なる場合がございます。













